-
-
-
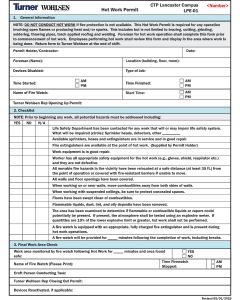
Joshua Business GraphicsTurner Wohlsen - Hot Work PermitRegular Price $500.00Turner Wohlsen Hot Work Permits
-
Turner Wohlsen Hot Work Permits